
CAD 실무능력평가 [CAT 2급] 시험 작업 순서를 알려 드리겠습니다.
★ 3각법 투영 방법 제외 한 주요 핵심 작업 순서!!!
1.홈페이지 접속 / 회차 선택 / 응시과목 선택 / 이름,수험번호 입력 후 로그인
2.시험 유의사항 안내 및 인증코드 입력 후 시험 화면으로 이동
3. 템플릿 파일 받기
반드시 “다른이름으로 저장하기”하여 바탕화면에 저장
* 템플릿 파일은 수험번호명으로 다운로드 되므로 파일명 변경 금지
4. CAD 프로그램 실행
5. 다운로드 받은 템플릿 열기
6. 레이어 7개 만들기

7. 외형선 레이어 맨 앞으로 변경
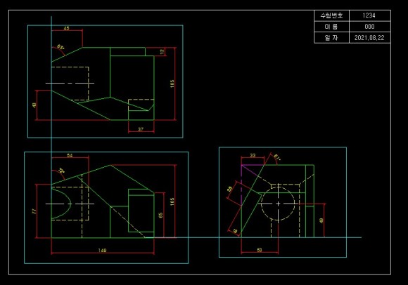
8. 시험문제 1 확인 하며 3각법 작업
9. 3각법 작업 완료 후 치수 & 문자 스타일 설정
※ 기호 및 화살표 : 화살표 크기 (1) , 중심표식 (없음)

※ 문자 : 문자색상 (노란) , 문자높이 (2.5) , 문자정렬 (ISO)

※ 문자 스타일 : 글꼴 (굴림) , 높이 (0)

※ 맞춤 : 옵션 (화살표) , 전체축척 (2)

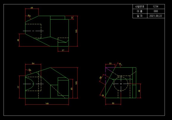
10. 치수 기입 하기
11. 시험 문제의 치수 문자 & 화살표 위치 비교 검토 하기
12. 배치 시트 클릭
13. 0번 레이어 맨 앞으로 변경
14. LIMITS 엔터 / 0,0 엔터 / 297,210 엔터
15. Z 엔터 / A 엔터
16. REC 엔터 / 0,0 엔터 / 297,210 엔터
17. 안쪽으로 간격 띄우기 (10)

18. 바깥쪽 사각형 삭제
19. 남아있는 REC 사각형 분해

20. 표제란 작성

21. 표제란 문자 기입
[문자 높이 = 3 / 문자 레이어 적용]

22. 뷰포트 레이어 맨 앞으로 변경
23. MV 엔터 / 4엔터 / 좌측 상단 모서리 클릭 / 우측 하단 모서리 클릭

24. 우측 상단 뷰포트 삭제

25. (평면도 , 정면도, 우측면도) 각 해당 되는 도형만 보이게 조정

26. 각 뷰포트 크기 조정

27. 각 뷰포트 축척 조정 [ Z 엔터 / 1/2XP 엔터 ]

28. 정면도를 기준으로 선을 그려 평면도 우측면도 정렬 시킴

29. 뷰포트 위치& 간격 조정

30. 0번 레이어 맨 앞으로 변경
31. 레이어에서 뷰포트 동결

32. TITLE 블록 삽입

33. TITLE 문자 기입 [문자높이= 3.5 /축척 문자높이= 2.5 /문자레이어 적용]

34. 각 3각법에 TILE 블록 적용 (복사 & 편집)

35. 시험 문제와 비교 하여 동일하게 LTS 변경 [LTS=2.5]
36. Z 엔터 / A 엔터
37. 출력 페이지 설정

38. Page setup 엔터 [수정 클릭 출력 페이지 설정과 동일 여부 확인]

39. Z 엔터 / A 엔터
40. 저장 클릭
41. CAD 프로그램 종료
42. 바탕화면에 수험번호 dwg 파일 제출
43. 파일 전송 여부 시험관에게 확인 후 시험 종료 클릭
예제 연습 할 경우 동일 작업 반복 하시면 큰 도움이 될 거라 생각 합니다.
'CAD 실무 능력 평가' 카테고리의 다른 글
| 2021년 CAT2급 기출 문제 & 풀이 방법 (2021.04.10) (0) | 2021.10.28 |
|---|---|
| 2021년 CAT2급 기출 문제 & 풀이 방법 (2021.03.13) (0) | 2021.10.26 |
| [CAT 2급] 배점표 (0) | 2021.07.06 |
| [CAT 2급] 응시자 메뉴얼 (0) | 2021.07.06 |
| [CAT 2급] 2021년 시험 일정 / 난이도 조정 안내 (0) | 2021.07.06 |
댓글